リノベダイアリー【せんげん台パークタウン】①
【2025年10月15日(水)】
システムキッチン比較 ユニットバス リクシル タカラスタンダード 春日部市越谷市さいたま市 おすすめ 口コミ リノベーション フルリフォーム
本日は、【せんげん台パークタウン一番街2号棟】の弊社所有物件に、解体業者さんと
打合せの為に行ってまいりました。
こちらの物件は、駅からも徒歩7分と近いのですが、さらには、エントランスからイオンスタイルが見えるくらい近いです。エントランスを出て数十秒の所にお店の入口があります。

エントランスの向かって右側が自動ドアになっているので、両手がふさがっていても安心です。
システムキッチン比較 ユニットバス リクシル タカラスタンダード 春日部市越谷市さいたま市 おすすめ 口コミ リノベーション フルリフォーム

緩やかなスロープがあって、車いすでも無理なく上がることが出来そうです。
システムキッチン比較 ユニットバス リクシル タカラスタンダード 春日部市越谷市さいたま市 おすすめ 口コミ リノベーション フルリフォーム

システムキッチン比較 ユニットバス リクシル タカラスタンダード 春日部市越谷市さいたま市 おすすめ 口コミ リノベーション フルリフォーム
エントランス周辺はインターロッキングブロックが敷設されているので安全です。

システムキッチン比較 ユニットバス リクシル タカラスタンダード 春日部市越谷市さいたま市 おすすめ 口コミ リノベーション フルリフォーム
これから部屋に向かいます。

玄関が広く、マンションには珍しく奥行があります。
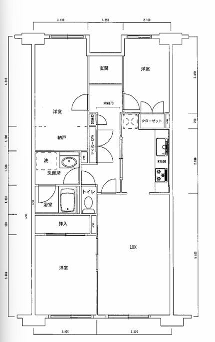
ちなみに既存(解体前)の平面図はこちらです。

今回は間取りを変えて、センターインのような部屋にします。
完成予定図面は ↓ ↓ ↓こんなこんな感じです。
キッチンを対面にして、室内にある給湯器はバルコニーに移動します。

工事が始まりましたら、その様子も随時掲載させていただきますので、ぜひご覧ください。
お楽しみに!
システムキッチン比較 ユニットバス リクシル タカラスタンダード 春日部市越谷市さいたま市 おすすめ 口コミ リノベーション フルリフォーム




